
מארז בפוקוס: 3AE Siemens Circuit Breaker Retrofit
במקרה מייצג אחד, ביצענו שיפוץ מקיף על אצווה של מפסקי ואקום מסדרת סימנס 3AH עבור הלקוח שלנו.
לא רק החלפנו את מפסקי הוואקום ביחידות חדשות עם ביצועים גבוהים- וביצענו תחזוקה ושיפור יסודיים של מנגנון ההפעלה המקורי, אלא, המכריע ביותר, שילבנו את הבקר החכם מסדרת ADT-600 שפותחה באופן עצמאי.
לאחר תיקון-מחדש, המפסקים האלה לא רק השיבו את ביצועי המיתוג המקוריים שלהם, אלא גם רכשו יכולות חדשות לניטור פרמטרים חשמליים-בזמן אמת, אזהרת תקלות מראש-, הערכת תוחלת חיים ותקשורת RS485, וסייעו ללקוח במעבר מ"תיקון תגובתי" לעידן חדש של "תחזוקה ומניעתית" חכמה.
שיפוץ תמונות פרטים



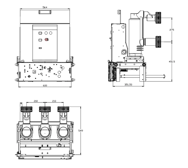
מנגנון תפעול קפיץ מסדרת VTZ הוא מנגנון הפעלה מדור חדש למפסקי ואקום שפותח על ידי XDTZ.
הוא תוכנן לאחר מחקר שוק מקיף ומעמיק-, תוך שילוב טכנולוגיה וניסיון ביתי מתקדמים. וזהו החלק המרכזי במפסק ואקום, במיוחד עבור חידושים של vcb.
XDTZ קבל מותאם אישית את מנגנון ההפעלה שלך, לא רק מנגנון הפעלה של קפיץ אלא גם מנגנון מגנט קבוע.
המטרה שלנו

XDTZ מחויבת באופן עקבי לספק למשתמשי כוח גלובליים פתרונות שירות מלאים במחזור החיים.- יכולת ההתאמה של-המותגים הרבים שלנו היא עדות למחויבות זו. אנו מאמינים שבאמצעות העצמה טכנית מקצועית, כל ציוד חשמלי יכול להמשיך ליצור ערך.
מעבר להחלפה פשוטה: אספקת פתרונות שדרוג מותאמים אישית
בשונה מהחלפה פשוטה של "ישן-עבור-חדש", שירות ההתאמה המקצועית המוצעת על ידי XDTZ מייצג חידוש ערכים מדויק, מותאם אישית ו-מעמיק. הצוות הטכני שלנו עורך "בדיקת בריאות" מקיפה והערכה של כל מפסק בנפרד, ומגבש תוכנית שדרוג של "מוצר-אחד,-אסטרטגיה אחת" המבוססת על ארכיטקטורת המותג המקורית שלו. הליבה של התיקון מתרחב מעבר להחלפת רכיבי מפתח מיושנים כמו מפסקי הוואקום; הוא כולל כיול ואופטימיזציה מדויקים של מנגנוני ההפעלה, שדרוג מקיף של יחידות הגנה ובקרה חכמות, ושיקום ושיפור של מאפיינים מכניים וחשמליים הכוללים.
"המטרה שלנו היא לאפשר למכשירים הקלאסיים הללו לבצע ביצועים במפרטים המקוריים או אפילו מעבר להם תוך שילוב חכם ואמינה יותר במערכות חשמל מודרניות", אמר [שם], מנהל טכני ב-[שם החברה שלך]. "במיוחד עבור דגמים רבים שהופסקו, שירות ההתאמה מחדש שלנו הוא המסלול החסכוני ביותר להארכת חיי השירות ולהבטחת המשכיות הייצור."
פתרון דילמת התחזוקה של ציוד מזדקן, מתן יתרונות מרובים ללקוח
סדרה זו של פרויקטי שיפוץ מחדש נותנת מענה ישיר לנקודות הכאב הנפוצות העומדות בפני המשתמשים בציוד מותג בינלאומי מדור קודם:
לשבור את צוואר הבקבוק של חלקי החילוף: עבור חלקי יצרן מקוריים שהופסקו או בעלי זמני אספקה ארוכים במיוחד, אנו מספקים רכיבים חלופיים באיכות גבוהה-תואמים באופן מלא, ומבטלים לחלוטין את התלות בשרשרת האספקה.
קפיצה קדימה בתקני ביצועים: שדרוגים מהגנה מכנית מקורית או אלקטרונית בסיסית ליחידות ההגנה החכמות הדיגיטליות העדכניות ביותר, המאפשרות הגנה מדויקת, ניטור מצב ותקשורת מרחוק כדי לענות על צורכי תחזוקה חכמים.
אופטימיזציה של עלות הבעלות הכוללת: בהשוואה לרכישת מתג חדש או שירותי OEM פרימיום, פתרון השיפוץ יכול בדרך כלל לחסוך ללקוחות 30%-50% בעלויות תוך מקסום השימוש בנכסים קיימים ומזעור זמן השבתה.
הבטחת בטיחות ותאימות: באמצעות שיפוץ ובדיקות יסודיות, אנו מבטיחים שהציוד המותאם מחדש עומד במלואו בתקני הבטיחות החשמליים הנוכחיים, תוך ביטול סיכונים פוטנציאליים.
צור קשר





